Útulný 3 izbový byt v novostavbe, Kysucké Nové Mesto
Cena 159.900€
Cena 159.900€
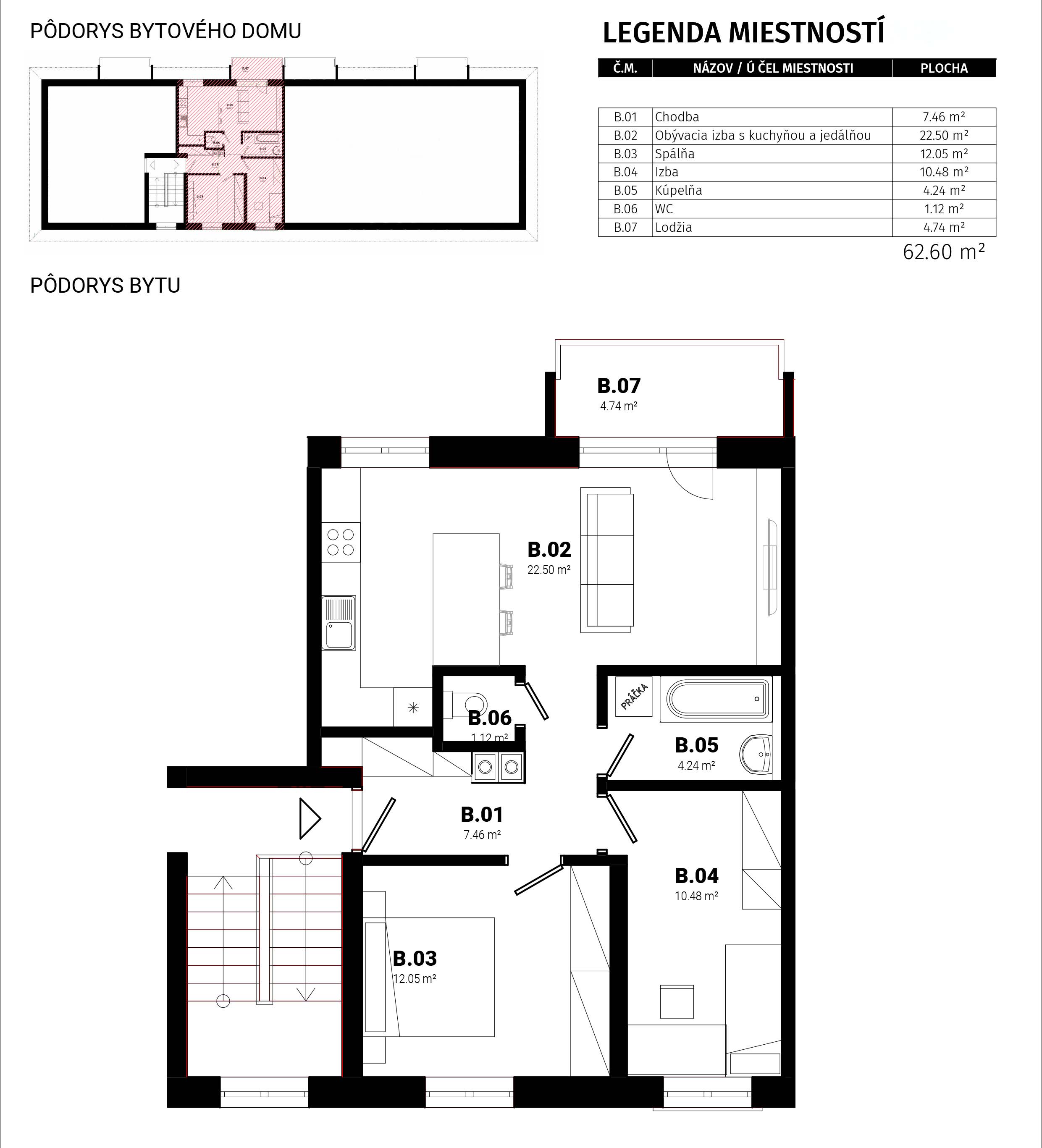
Predstavujem Vám na predaj úplne nový, prakticky riešený a nikdy neobývaný 3-izbový byt s celkovou rozlohou 62,60 m² vrátane presklenej loggie.Nachádza sa na 2.nadzemnom podlaží novostavby a poteší Vás premyslenou dispozíciou, moderným prevedením a kvalitnými materiálmi.
Byt je aktuálne dokončený v štandarde, čo vidieť aj na fotografiách. Okrem kuchynskej linky a svietidiel je kompletne hotový a pripravený na bývanie. Denná časť bytu pozostáva z obývacej izby spojenej s kuchyňou a jedálenskou časťou – ideálny priestor na relax, spoločné chvíle s rodinou či stretnutia s priateľmi. Z obývačky je priamy výstup na veľkú, presklenú loggiu o výmere 4,74m², ktorá príjemne dopĺňa obytný priestor. K bytu prislúcha aj pivničný priestor nad rámec výmery bytu.
Byt má dve samostatné nepriechodné izby – jednu môžete využiť ako hlavnú spálňu, druhú ako detskú izbu, pracovňu alebo hosťovskú izbu. Kúpeľňa disponuje vaňou, umývadlom a priestorom na práčku. WC je oddelené, čo zvyšuje komfort bývania.
Samozrejmosťou je elektrická predpríprava na praktické podomietkové predokenné žalúzie, ktoré umožňujú jednoduchú reguláciu svetla aj súkromia – stačí ich len namontovať.
Byt je čerstvo skolaudovaný v septembri 2025 v energetickej triede A, čo zabezpečuje veľmi nízke mesačné náklady (približne 120 €). Byt čaká na svojho úplne prvého majiteľa a je pripravený na okamžité nasťahovanie.
Nachádza sa v pokojnom vnútrobloku plnom zelene s kompletnou občianskou vybavenosťou na dosah. K bytu patrí aj možnosť pohodlného mestského parkovania na novovybudovaných parkovacích miestach.
Súčasťou predaja je kompletný právny a katastrálny servis vrátane zmlúv a prípadnej pomoci s financovaním.
Pre viac informácií alebo dohodnutie obhliadky neváhajte zavolať na tel. čísle 0908 128 948.

O Vašu nehnuteľnosť sa postará realitný maklér:
Martin Paluch - majiteľ a konateľ
realitné služby

+421 908 128 948